Fink House

Woollahra, NSW
2007

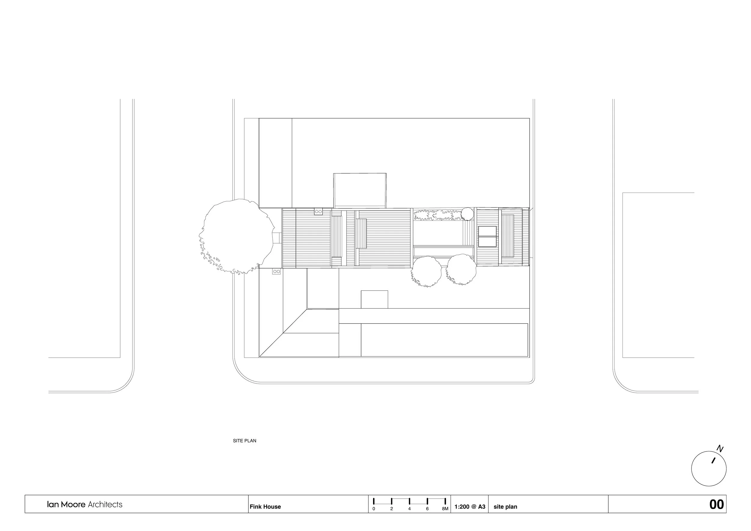
This is a renovation of an 1840s heritage listed sandstone cottage which was substantially added to in the 1980s. The front of the house could not be altered and any addition was not to be visible above the existing ridge line. 

The interior of the cottage, including its sandstone walls, was in poor condition, so a strategy of concealment was adopted where a new plasterboard skin covers all walls and two existing windows in the back wall of the cottage. 

The original front windows are retained but covered with fabric scrims to provide privacy but admit light. The front door is the only original element visible on the interior. The 1980s additions were gutted and new windows and doors fitted to existing openings while the loft within the gabled roof of the garage was demolished and a full second level added. The conceptual innovation in the project was the bridge over the courtyard. The main house was simply too small to accommodate the client’s brief for three bedrooms and two bathrooms. The bridge allowed for the main bedroom and ensuite to be located above the garage at the rear of the property but still physically connected to and on the same level as the children’s bedrooms.

The house has a very legible plan with the lower level divided into four roughly square spaces, living room (the original sandstone cottage), kitchen and dining area, courtyard and garage (children’s play space and additional entertaining space when cars are removed). The upper level has two children’s bedrooms, bathroom and communal study, the bridge spanning the courtyard and the main bedroom and ensuite above the garage.

The design includes a number of simple environmental concepts. Natural ventilation by way of adjustable glass louvres and large sliding glass doors. External aluminium sun shading louvres to windows and skylights. Recycled timber flooring. Retention of the existing sandstone cottage and the shell of the 1980s additions. Recycling of the existing granite paving to the courtyard. The bridge providing shading to the built-in seat in the courtyard. Low

energy long life light fittings and water saving tapware and toilet cisterns. An ethanol burning eco-smart fireplace has been installed in the living room to replace the original wood burning fireplace.

Builder: Paul R. Cigana
Photographer: Brett Boardman