Hastings Van Nunen House

Surry Hills, NSW
2018

Set within the heritage conservation area of Surry Hills, Sydney, this project is the extension and reworking of a former Butcher’s Shop.

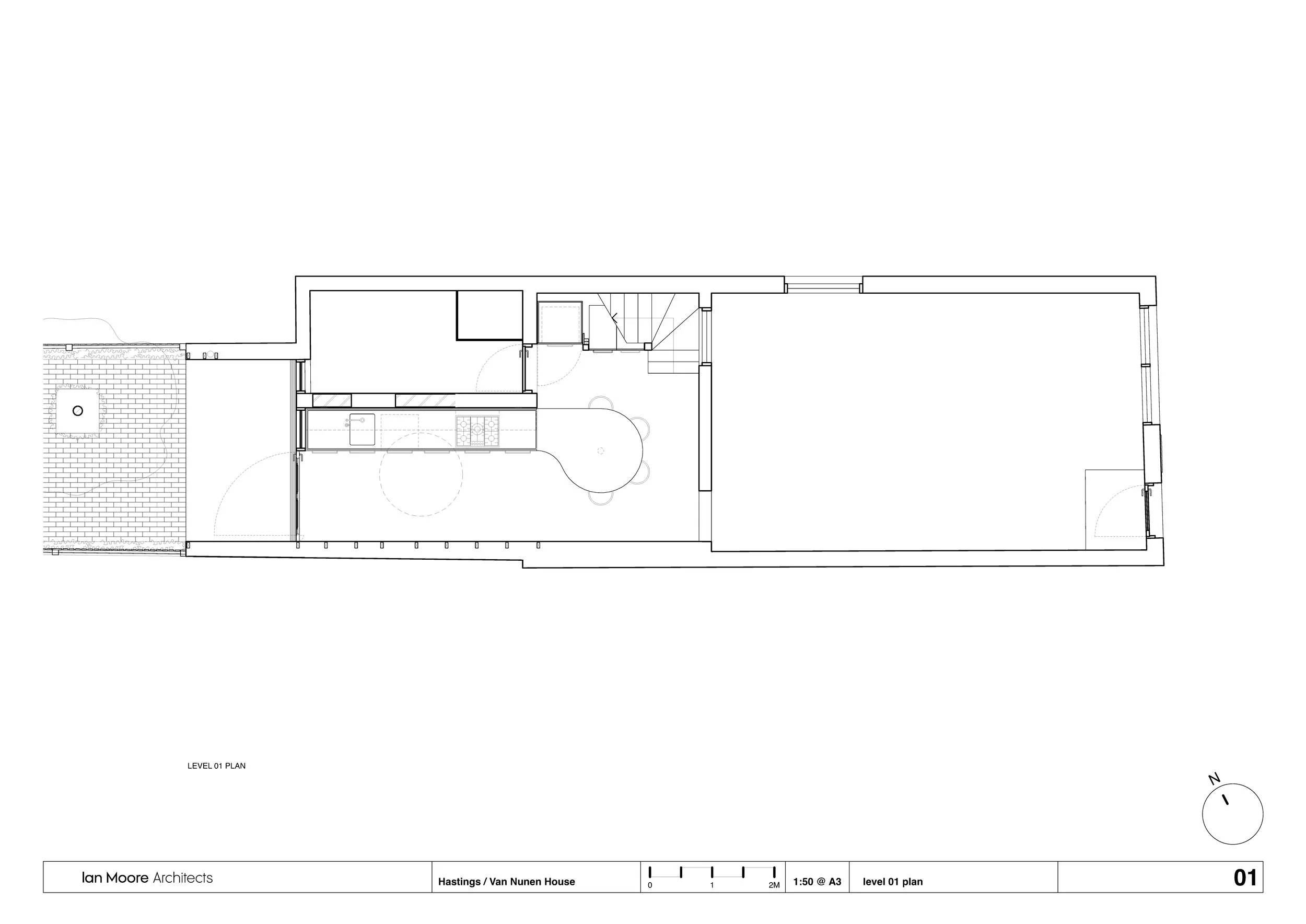
The brief was to create a new kitchen and rooftop extension to house the main bedroom with ensuite bathroom, while maintaining the original butcher’s shop as the main living space. Conceptually the new work is a ‘Z’ shaped element, consisting of the horizontal kitchen leg at the lower level, running towards the rear yard, a vertical stair well and another horizontal leg on the upper level, running towards the street frontage, containing the main bedroom.

The new kitchen is at the intersection of the circulation paths to the rear yard, stair and bathroom, with the design of the circular end to a ‘hockey stick’ kitchen bench forming the pivot point for all these movements and a family table at the centre of the home. The fully tiled walls of the kitchen are a reference to the original butcher’s shop tiling, which is still intact on the internal walls of the living and dining area at the front of the house.

The third storey addition is set back from the existing parapet, maintaining the original building form to preserve the heritage character of the existing, while allowing for the insertion of a small roof terrace between old and new. A freestanding wardrobe unit forms the bedhead, with the ensuite to the rear beside the new stair.

The ‘Z’ shaped additions are expressed as a contemporary insertion and clad in white aluminium panels, to contrast with the original brickwork. The new kitchen floor is polished concrete while the upper levels have black linoleum flooring.

Builder: Jamison Building
Photographer: Daniel Mayne
Stylist: Tess Strelein