International Lodge

Elizabeth Bay, NSW
2015

International Lodge is a Harry Seidler designed apartment building in Elizabeth Bay, Sydney, completed in 1962. The building was designed as compact 40 square metre 1 bedroom and 29 square metre studio apartments. In 2014 the client purchased a 1 bedroom and a studio apartment side by side at the western end of the building, with exceptional views over Elizabeth Bay and Garden Island to Sydney Harbour and the Harbour Bridge.

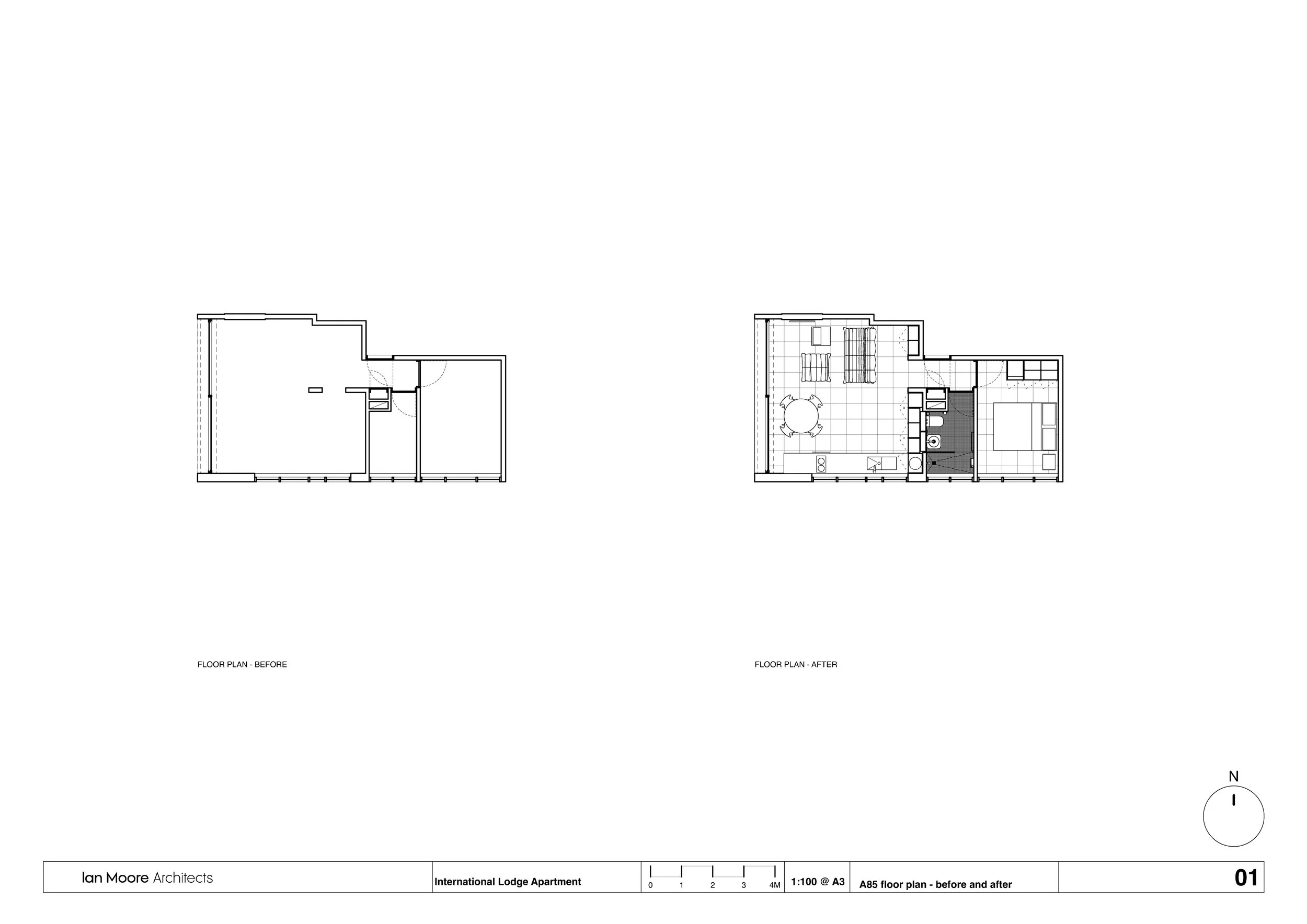
The brief was to combine the 2 units to form a 69 square metre, 2 bedroom apartment (the only one in the block). The original kitchen of the 1 bedroom unit has been fully integrated into a new open plan kitchen/living/dining space. The kitchen of the studio was removed completely to form a new dressing room for the main bedroom (incorporating a small laundry), the studio wardrobe removed and incorporated into the ensuite bathroom to form a new shower and a new internal doorway inserted to link the 2 units.

Grey rubber flooring was laid throughout the apartment to enhance the sense of continuity between spaces and further integrate the kitchen into the main living area. The simple black kitchen bench, which incorporates dishwasher and refrigerator drawers, is cantilevered from the wall to read as a piece of furniture, while all other joinery is white. Bathrooms have been modified to incorporate substantial storage in mirrored cabinets, which also allowed fittings to be relocated slightly, while maintaining connection to existing plumbing stacks. Circular satin finish mosaic tiles line walls and floors with the softly rounded forms of the Caroma ‘Marc Newson’ fixtures and tapware continuing the circular language. New Bega LED circular glass light fittings throughout the apartment replicate the originals.

Builder: Zandt Building
Photographer: Iain MacKenzie
Stylist: Tess Strelein