Rose House

Kiama, NSW
2000

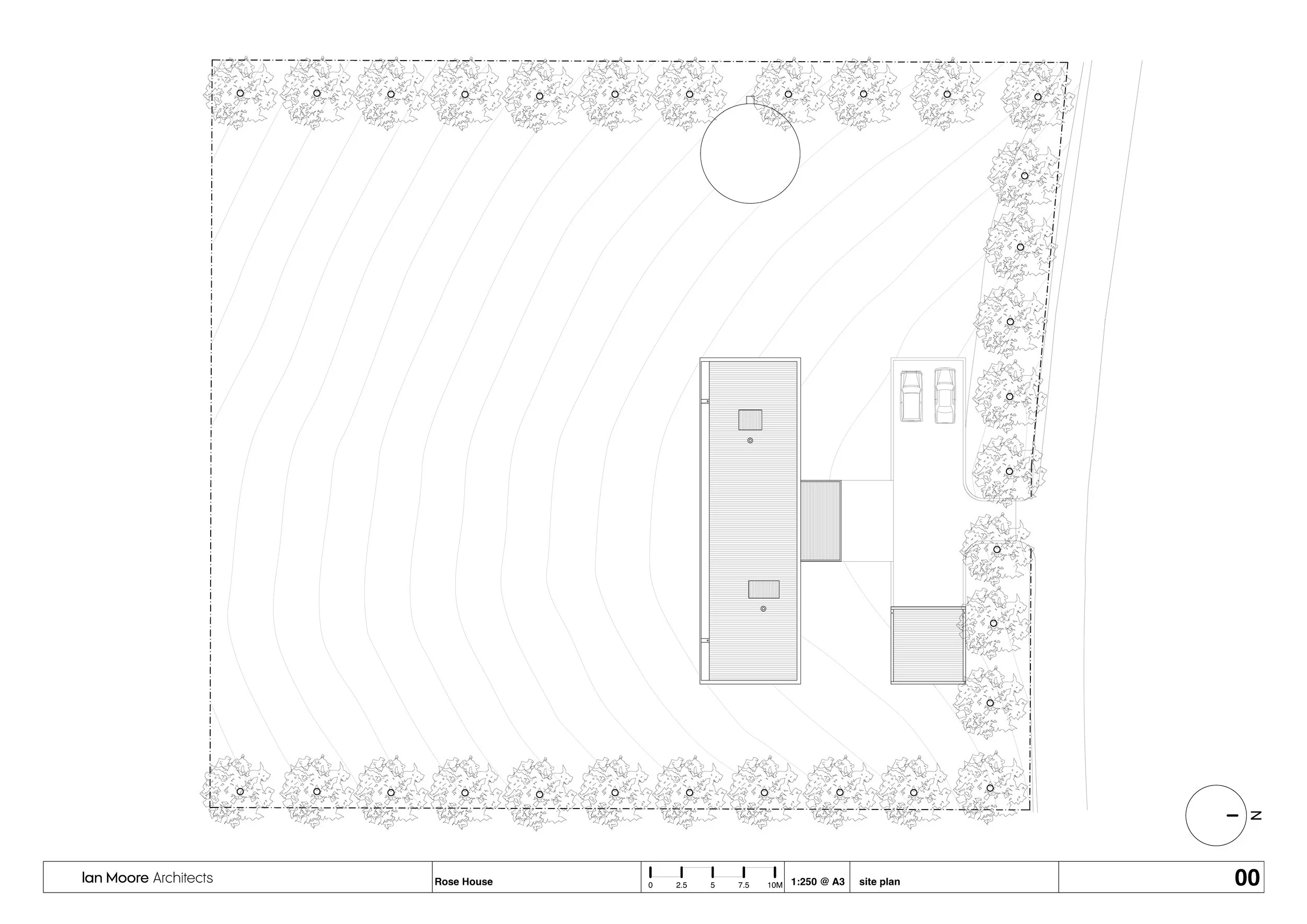
This house is located 2 hours drive south of Sydney, on a rural lot on the southern side of Saddleback Mountain, approximately 50m below the summit. The site is convex in form with a ridge running north-south down the centre, falling 15m towards the bush line. There are significant 180 degrees views from the coastal escarpment in the west, Pigeon- House Mountain in the south and the coastline to the east including Werri Creek Lagoon and Seven Mile Beach. The view to the north is of the heavily treed hillside leading up to Saddleback Mountain Lookout.

In order to maximise the views and build on the gentler slope, the house has been sited adjacent to the road at the upper edge of the site and centred on the north-south ridge to take advantage of an almost symmetrical fall to both the east and west.

The rectangular plan form is divided into 3 zones by way of two service cores. The eastern zone is for the parents, the western zone for the children, while in the centre is the kitchen, living, dining area. By centralising the living areas and pulling the service cores back from the glazing lines there are significant diagonal vistas in all directions. As there is also a significant view to the East a horizontal window has been introduced in the main bedroom wall above the bed. This window is shaded with adjustable external aluminium louvres. There is an open platform with an aluminium louvred roof to the north of the living areas which forms the entry to the house as well as a shaded verandah. On entering the house the dramatic view down the mountain to the south is instantly apparent. There are 800mm wide decks running the length of the house on both the north and the south which provide both sun shading and weather protection to the large sliding glass walls. When the doors are open the entire living area becomes an open verandah space, with exceptional cross ventilation.

In order to minimise the impact of the building on the site a lightweight steel structure has been adopted, consisting of 2 vierendeel trusses running the length of the house sitting on 2 reinforced concrete block storerooms under the house, which form the only contact with the ground. The vierendeel trusses allow the house to cantilever 3.5 metres beyond the storerooms at the east and west ends, with the 460 UB bottom chord of the trusses fully expressed at the underside of the concrete floor slab. The 2 service cores pass through the floor down to ground level providing the bracing to the structure. These cores also conceal all plumbing and provide storage areas beneath the house. The roof and end walls are clad in the same grey profiled steel sheeting. The window and door system consists of identical sliding aluminium framed glass doors on both the north and south elevations, with adjustable glass louvres above on the north elevation.

Builder: Phillip C. Young
Photographer: Ross Honeysett