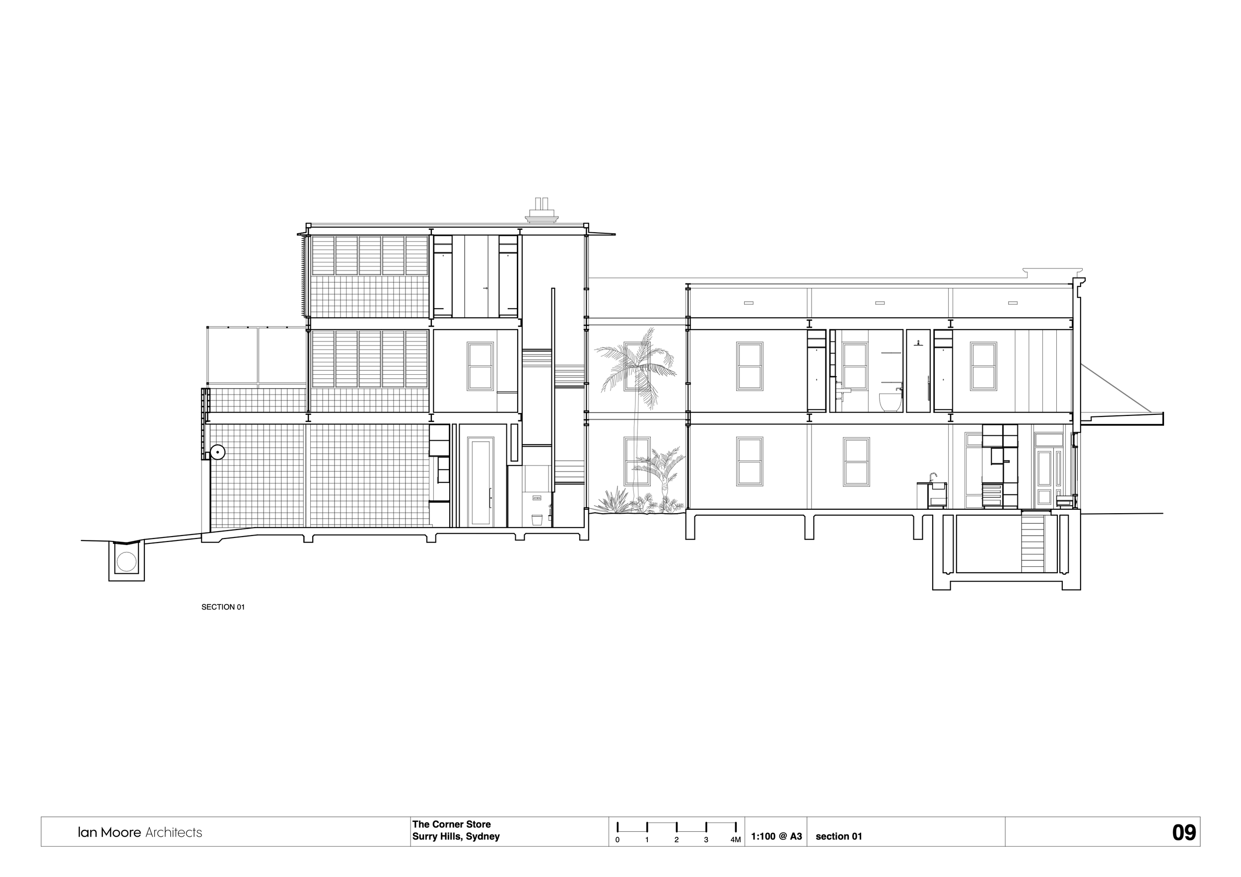
The Corner Store
Surry Hills, NSW
2025
Builder: Bright Build
Photographer: Clinton Weaver & Nick Bowers
Stylist: Tess Strelein
Builder: Bright Build
Photographer: Clinton Weaver & Nick Bowers
Stylist: Tess Strelein